Facebook
  • RKS.161.14.1094
  • RKS.161.14.1094

RKS.161.14.1094

No.00434
DALIAN FINE ENGINEERING SLEWING BEARING RKS.161.14.1094
  • RKS.161.14.1094

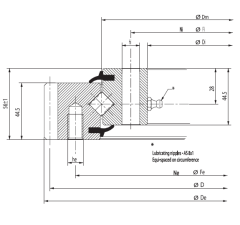
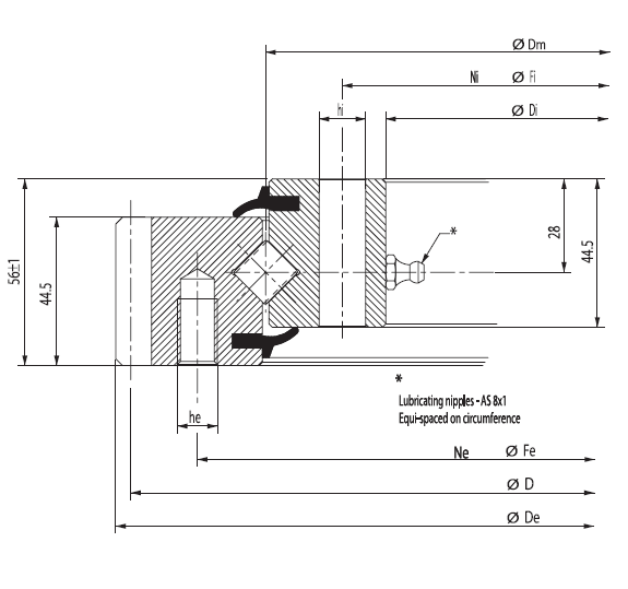
Description

CROSSED ROLLER SLEWING BEARINGS WITH EXTERNAL GEAR TEETH
designation main dimensions fixing holes gear teeth mass
De Dm Di Fe he Ne Fi hi Ni D m Z Kg
RKS.161.14.0414 503.3 414 344 455 M12 20 368 14 24 495 5 99 32
RKS.161.14.0544 640.3 544 474 585 M12 28 498 14 32 630 6 105 44
RKS.161.14.0644 742.3 644 574 685 M12 32 598 14 36 732 6 122 52
RKS.161.14.0744 838.1 744 674 785 M12 36 698 14 40 828 6 138 59
RKS.161.14.0844 950.1 844 774 885 M12 36 798 14 40 936 8 117 71
RKS.161.14.0944 1046.1 944 874 985 M12 40 898 14 44 1032 8 128 77
RKS.161.14.1094 1198.1 1094 1024 1135 M12 44 1048 14 48 1184 8 148 91